Description
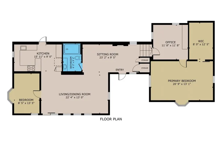
**MOTIVATED MOTIVATED MOTIVATED SELLERS** BRING OFFERS! NICE 2bd, +bonus room, 1 bath home, 62 AWESOME ACRES, with newly built, large deck, gazing over THE CANE RIVER and LONG RANGE Blue Ridge mountain views! Sounds of the sprawling river are breathtaking! Land is filled with many species of trees, plants, and wildlife winding along the logging road! FISH, HUNT, SWIM, HIKE, or TRAIL RIDE on YOUR own property! Building spots and possible long range views in various places for PRIVATE cabins, tiny homes, or camping areas. The tastefully updated home is perfect for your Primary, 2nd home, or use as a short term rental. Enjoy the remodeled kitchen with newer appliances! Sit by the warm gas fireplace on cold winter nights! Spacious extra bonus room for an office/nursery. Equipped with whole house dehumidifier and a spring filtration system with UV light. About 12 mi. to Burnsville Town Square and a short drive to The Appalachian Trail! The kitchen’s 137sq ft is not counted because of ceiling height is just under 7ft at 80 inches, 6ft 6.6 inches.(Sq ft rules) Part of the home was built in the 60’s per seller. The land is under Forestry Management for conservation and lowering taxes! The home is not in a flood zone.
Address
Open on Google Maps-
Address: 12982 US HWY 19W None
-
City: Burnsville
-
State/county: NC
-
Zip/Postal Code: 28714
-
Area: NONE
Details
Updated on May 29, 2026 at 5:31 pm-
Property ID 4234088
-
Price $454,999
-
Bedrooms 2
-
Bathroom 1
-
Garage 1
-
Year Built 1920
-
Property Type Single Family Residence, Residential
-
Property Status Active, For Sale
Additional details
-
Listing Terms Cash, Conventional, FHA, USDA Loan, VA Loan
-
Roof Composition, Rubber
-
Utilities Cable Available, Electricity Connected, Propane, Wired Internet Available
-
Sewer Septic Installed
-
Cooling Ceiling Fan(s), Central Air
-
Heating Central, Propane
-
Flooring Slate, Vinyl, Wood
-
County Yancey
-
Property Type Residential
-
Parking Detached Carport, Driveway, Attached Garage, Garage Door Opener, Garage Faces Front, Parking Space(s)
-
Elementary School Blue Ridge
-
Middle School Cane River
-
High School Mountain Heritage
-
Waterfront None
-
Architectural Style Farmhouse, Traditional
Mortgage Calculator
-
Down Payment
-
Loan Amount
-
Monthly Mortgage Payment
-
Property Tax
-
Home Insurance
Video
360° Virtual Tour
Contact Information
View ListingsSimilar Listings
1042 Assembly Street, Belmont, North Carolina 28012
1042 Assembly Street, Belmont, NC 28012, Belmont, NC- Beds: 4
- Baths: 3
- Single Family Residence, Residential
525 Julia Avenue, Belmont, North Carolina 28012
525 Julia Avenue, Belmont, NC 28012, Belmont, NC- Beds: 3
- Baths: 2
- Single Family Residence, Residential
6033 Bountiful Street, Belmont, North Carolina 28012
6033 Bountiful Street, Belmont, NC 28012, Belmont, NC- Beds: 3
- Baths: 3
- Single Family Residence, Residential
10 Oak Street, Belmont, North Carolina 28012
10 Oak Street, Belmont, NC 28012, Belmont, NC- Beds: 5
- Baths: 4
- Single Family Residence, Residential
- The Simpson Group Realty