Description
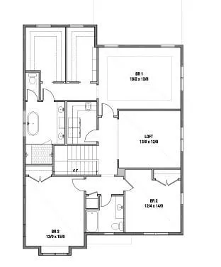
This custom-built 3,000 sq. ft. home features a carefully crafted floor plan, showcasing premium finishes and exceptional functionality. It is designed to be constructed on a prime lot located less than 3 miles from uptown, providing a picturesque view of the Charlotte skyline and is under 5 miles from Charlotte Douglas International Airport. This spacious lot offers unparalleled convenience and potential. Additionally, the detached garage on the second floor can be transformed into a bonus room or apartment, pending the necessary permits and assigned costs.
Address
Open on Google Maps-
Address: 1115 West Boulevard
-
City: Charlotte
-
State/county: NC
-
Zip/Postal Code: 28208
-
Area: NONE
Details
Updated on October 10, 2025 at 3:20 pm-
Property ID 4253297
-
Price $1,250,000
-
Bedrooms 4
-
Bathrooms 3
-
Garages 2
-
Garage Size x x
-
Year Built 2025
-
Property Type Single Family Residence, Residential
-
Property Status Active, For Sale
Additional details
-
Listing Terms Cash,Construction Perm Loan
-
Roof Shingle
-
Sewer Public Sewer
-
Cooling Central Air
-
Heating Central
-
County Mecklenburg
-
Property Type Residential
-
Parking Detached Garage
-
Elementary School Unspecified
-
Middle School Unspecified
-
High School Unspecified
-
Architectural Style Tudor
Mortgage Calculator
Monthly
-
Down Payment
-
Loan Amount
-
Monthly Mortgage Payment
-
Property Tax
-
Home Insurance
Contact Information
View ListingsSimilar Listings
525 Julia Avenue, Belmont, NC 28012
525 Julia Avenue, Belmont, NC 28012, Belmont, NC- Beds: 3
- Baths: 2
- Single Family Residence, Residential
2643 Swamp Chestnut Oak Drive, Gastonia, NC 28056
2643 Swamp Chestnut Oak Drive, Gastonia, NC 28056, Gastonia, NC- Beds: 6
- Baths: 4
- Single Family Residence, Residential
1000 Ashley Place, Belmont, NC 28012
1000 Ashley Place, Belmont, NC 28012, Belmont, NC- Beds: 5
- Baths: 4
- Single Family Residence, Residential
6033 Bountiful Street, Belmont, NC 28012
6033 Bountiful Street, Belmont, NC 28012, Belmont, NC- Beds: 3
- Baths: 3
- Single Family Residence, Residential
- The Simpson Group Realty