Description
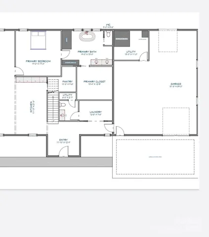
Investors and/or construction knowledge is ideal with this partial build. 10.37 heavily wooded acres with natural spring. Located among rolling farmland and hillsides of the Jacks Creek area of Yancey County, just north of Burnsville. 4 bedroom septic and private well installed, with underground power line, driveway and site clearing. Current construction has Zip walls, standing seam roof, partial HVAC and insulated windows. Pole Barn design allows flexibility to modify floor plan to meet your needs. Featuring 3850 sqft, a large vaulted-ceiling great room with fireplace, open floor plan flowing into kitchen/dining area, ensuite master and bath on main level, laundry and powder room. 1200 sqft attached 3 bay garage with mechanical room. Additional rooms upstairs include 3 bedrooms, 3 full baths, loft upstairs. Sold in current state of construction.
Address
Open on Google Maps-
Address: 498 Coxes Creek Road
-
City: Burnsville
-
State/county: NC
-
Zip/Postal Code: 28714
-
Area: Jacks Mountain Preserve
Details
Updated on May 8, 2026 at 10:03 pm-
Property ID 4322693
-
Price $375,000
-
Bedrooms 4
-
Bathrooms 5
-
Garage Size x x
-
Year Built 2025
-
Property Type Single Family Residence, Residential
-
Property Status Active, For Sale
Additional details
-
Listing Terms Cash,Conventional,FHA,VA Loan
-
Utilities None
-
Sewer Septic Installed
-
Cooling Central Air
-
Heating None
-
County Yancey
-
Property Type Residential
-
Parking Other - See Remarks
-
Elementary School Clearmont
-
Middle School Cane River
-
High School Mountain Heritage
-
Waterfront None
-
Architectural Style Contemporary
Features
Mortgage Calculator
-
Down Payment
-
Loan Amount
-
Monthly Mortgage Payment
-
Property Tax
-
Home Insurance
Contact Information
View ListingsSimilar Listings
525 Julia Avenue, Belmont, NC 28012
525 Julia Avenue, Belmont, NC 28012, Belmont, NC- Beds: 3
- Baths: 2
- Single Family Residence, Residential
2643 Swamp Chestnut Oak Drive, Gastonia, NC 28056
2643 Swamp Chestnut Oak Drive, Gastonia, NC 28056, Gastonia, NC- Beds: 6
- Baths: 4
- Single Family Residence, Residential
1000 Ashley Place, Belmont, NC 28012
1000 Ashley Place, Belmont, NC 28012, Belmont, NC- Beds: 5
- Baths: 4
- Single Family Residence, Residential
6033 Bountiful Street, Belmont, NC 28012
6033 Bountiful Street, Belmont, NC 28012, Belmont, NC- Beds: 3
- Baths: 3
- Single Family Residence, Residential
- The Simpson Group Realty