Description
This listing includes 2 APNs (035 054 & 035 254). The home will sell with the adjacent lot. This exceptional property sits on two large, private lots, offering incredible potential for families or investors alike. The home features soaring ceilings and a versatile layout ready to be customized to suit the new owner’s vision. Ideally located within walking distance to the high school, shopping, and a nearby park, convenience is at your doorstep. Step outside to your own year-round backyard retreat complete with a spacious pool, diving board, hot tub, cabana, and expansive concrete patio areas—perfect for entertaining or relaxing in total privacy. Enjoy the freedom, space, and comfort this unique property provides. Submit your offer today and make this remarkable home yours! This is an investor special.
Address
Open on Google Maps-
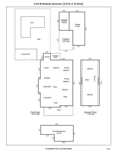
Address: 216 N Rowan Avenue
-
City: Spencer
-
State/county: NC
-
Zip/Postal Code: 28159
-
Area: NONE
Details
Updated on April 21, 2026 at 8:43 pm-
Property ID 4347581
-
Price $154,900
-
Bedrooms 4
-
Bathrooms 3
-
Garage Size x x
-
Year Built 1924
-
Property Type Single Family Residence, Residential
-
Property Status Pending, For Sale
Additional details
-
Listing Terms Cash,FHA 203(K)
-
Sewer Public Sewer
-
Cooling Central Air
-
Heating None
-
Flooring Tile,Wood
-
County Rowan
-
Property Type Residential
-
Pool In Ground
-
Parking Driveway
-
Elementary School North Rowan
-
Middle School North Rowan
-
High School North Rowan
Features
Mortgage Calculator
-
Down Payment
-
Loan Amount
-
Monthly Mortgage Payment
-
Property Tax
-
Home Insurance
Video
360° Virtual Tour
Contact Information
View ListingsSimilar Listings
1000 Ashley Place, Belmont, NC 28012
1000 Ashley Place, Belmont, NC 28012, Belmont, NC- Beds: 5
- Baths: 4
- Single Family Residence, Residential
6033 Bountiful Street, Belmont, NC 28012
6033 Bountiful Street, Belmont, NC 28012, Belmont, NC- Beds: 3
- Baths: 3
- Single Family Residence, Residential
525 Julia Avenue, Belmont, NC 28012
525 Julia Avenue, Belmont, NC 28012, Belmont, NC- Beds: 3
- Baths: 2
- Single Family Residence, Residential
10 Oak Street, Belmont, NC 28012
10 Oak Street, Belmont, NC 28012, Belmont, NC- Beds: 5
- Baths: 4
- Single Family Residence, Residential
- The Simpson Group Realty