Description
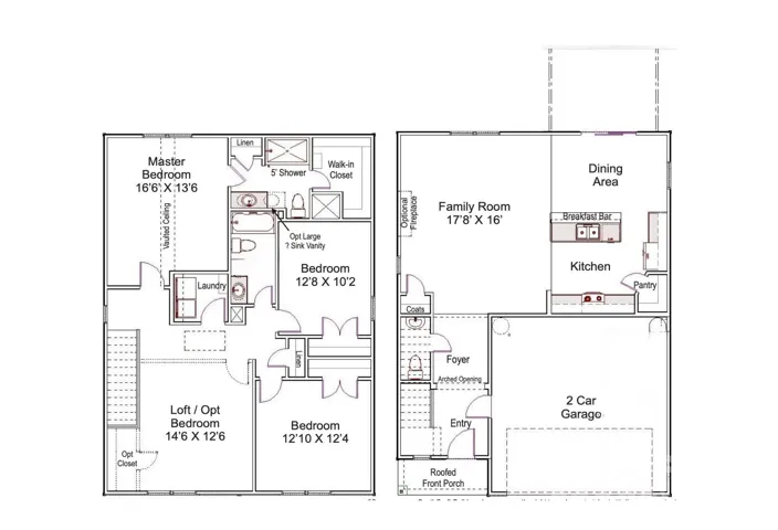
USDA area – NO MONEY DOWN! This is our Wynwood IB plan. This floor plan also offers the option for a 3 bedroom and large loft space. In addition, builder is offering up to $10,000 for buyer to use towards closing cost if a preferred lender is used. There are also additional incentives for a limited time! Just a short drive from Charlotte or the NC mountains. Our vibrant community offers LOW HOA DUES. Your new home comes loaded with upgrades: 9″ ceilings, LVP flooring, luxury tile, 36″ staggered cabinets, and a modern kitchen with granite countertops, stainless steel appliances, and a linear tile backsplash. All bedrooms are great sizes! Upstairs, find generously sized bedrooms and a convenient laundry room. Come see your future today! SouthCraft Builders by Empire Homes offers quality craftsmanship, well-appointed designer elements and all of the features buyers expect in a custom-built residence at an affordable price.
Address
Open on Google Maps-
Address: 111 Pinnacle Crossing
-
City: Shelby
-
State/county: NC
-
Zip/Postal Code: 28152
-
Area: Villas of Kings View
Details
Updated on April 20, 2026 at 4:56 pm-
Property ID 4353221
-
Price $261,990
-
Bedrooms 4
-
Bathrooms 3
-
Garages 2
-
Garage Size x x
-
Year Built 2026
-
Property Type Single Family Residence, Residential
-
Property Status Active, For Sale
Additional details
-
Listing Terms Cash,Conventional,Exchange,FHA,USDA Loan,VA Loan
-
Association Fee 450
-
Roof Architectural Shingle
-
Utilities Cable Available,Electricity Connected
-
Sewer Public Sewer
-
Cooling Ceiling Fan(s),Central Air
-
Heating Electric,Heat Pump
-
Flooring Carpet,Vinyl
-
County Cleveland
-
Property Type Residential
-
Parking Driveway,Attached Garage,Garage Door Opener,Garage Faces Front
-
Elementary School Elizabeth
-
Middle School Shelby
-
High School Shelby
-
Community Features Sidewalks
-
Architectural Style Transitional
Mortgage Calculator
-
Down Payment
-
Loan Amount
-
Monthly Mortgage Payment
-
Property Tax
-
Home Insurance
Contact Information
View ListingsSimilar Listings
10 Oak Street, Belmont, NC 28012
10 Oak Street, Belmont, NC 28012, Belmont, NC- Beds: 5
- Baths: 4
- Single Family Residence, Residential
2643 Swamp Chestnut Oak Drive, Gastonia, NC 28056
2643 Swamp Chestnut Oak Drive, Gastonia, NC 28056, Gastonia, NC- Beds: 6
- Baths: 4
- Single Family Residence, Residential
101 Forrester Avenue, Belmont, NC 28012
101 Forrester Avenue, Belmont, NC 28012, Belmont, NC- Beds: 4
- Baths: 3
- Single Family Residence, Residential
525 Julia Avenue, Belmont, NC 28012
525 Julia Avenue, Belmont, NC 28012, Belmont, NC- Beds: 3
- Baths: 2
- Single Family Residence, Residential
- The Simpson Group Realty