Description
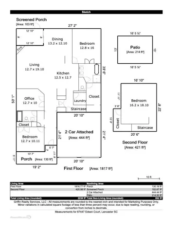
Welcome to 87447 Edsen Court, located in the desirable Walnut Creek community. This thoughtfully designed home offers a flexible floor plan with the primary suite and secondary bedroom on the main level, a dedicated home office downstairs, and a third bedroom or bonus room upstairs. A beautiful foyer welcomes you in, leading to an open main level with 10 and 12 foot ceilings. The dining room features an elegant coffered ceiling, while the living room is anchored by a stunning fireplace that serves as the focal point. The spacious kitchen offers ample room for cooking, gathering, and entertaining. Step outside to a covered and screened patio, perfect for enjoying year-round Carolina living. The fenced backyard is a private garden retreat, highlighted by carefully designed landscaping that sets this home apart. Walnut Creek residents enjoy direct access to the Carolina Thread Trail, including the Twelve Mile Creek Trailhead within the neighborhood. Ideally located near shopping and dining in Indian Land and Downtown Waxhaw, the community also features sidewalks, walking trails, parks, pools, and a fitness center. With a newer HVAC system (1 year old) and numerous upgrades and improvements, this home is move-in ready and suited for a variety of lifestyles.
Address
Open on Google Maps-
Address: 87447 Edsen Court
-
City: Lancaster
-
State/county: SC
-
Zip/Postal Code: 29720
-
Area: Walnut Creek
Details
Updated on May 6, 2026 at 5:34 pm-
Property ID 4359071
-
Price $479,900
-
Bedrooms 3
-
Bathrooms 2
-
Garages 2
-
Garage Size x x
-
Year Built 2008
-
Property Type Single Family Residence, Residential
-
Property Status Pending, For Sale
Additional details
-
Listing Terms Cash,Conventional,FHA,VA Loan
-
Association Fee 412
-
Sewer County Sewer
-
Cooling Central Air
-
Heating Natural Gas
-
Flooring Carpet,Tile,Wood
-
County Lancaster
-
Property Type Residential
-
Parking Driveway,Attached Garage
-
Elementary School Van Wyck
-
Middle School Indian Land Intermediate
-
High School Indian Land
-
Community Features Fitness Center,Outdoor Pool,Pickleball,Picnic Area,Playground,Pond,Recreation Area,Sidewalks,Street Lights,Tennis Court(s),Walking Trails
Features
Mortgage Calculator
-
Down Payment
-
Loan Amount
-
Monthly Mortgage Payment
-
Property Tax
-
Home Insurance
Contact Information
View ListingsSimilar Listings
525 Julia Avenue, Belmont, NC 28012
525 Julia Avenue, Belmont, NC 28012, Belmont, NC- Beds: 3
- Baths: 2
- Single Family Residence, Residential
2643 Swamp Chestnut Oak Drive, Gastonia, NC 28056
2643 Swamp Chestnut Oak Drive, Gastonia, NC 28056, Gastonia, NC- Beds: 6
- Baths: 4
- Single Family Residence, Residential
1000 Ashley Place, Belmont, NC 28012
1000 Ashley Place, Belmont, NC 28012, Belmont, NC- Beds: 5
- Baths: 4
- Single Family Residence, Residential
6033 Bountiful Street, Belmont, NC 28012
6033 Bountiful Street, Belmont, NC 28012, Belmont, NC- Beds: 3
- Baths: 3
- Single Family Residence, Residential
- The Simpson Group Realty