Description
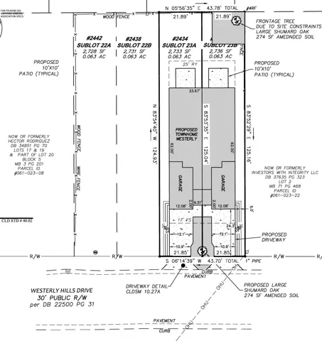
Fully approved, platted and pad-ready 2 unit development opportunity positioned between Uptown and Charlotte Douglas International Airport. Site is prepped for monoslab foundations, allowing for an efficient and immediate path to vertical construction. Plans are in place for two units at 1,595 heated sq ft each, featuring 3 beds, 2.5 baths, and a 273 sq ft garage per unit. Ideal for builders, developers, or investors seeking a streamlined project with no entitlement or site work risk. Rare opportunity in a strong growth corridor with multiple exit strategies, including build-to-sell or build-to-rent. The adjoining lot is also available separately, offering the opportunity to scale to a 4-unit development.
Address
Open on Google Maps-
Address: 2430 & 2434 Westerly Hills Drive
-
City: Charlotte
-
State/county: NC
-
Zip/Postal Code: 28208
-
Area: Westerly Hills
Details
Updated on April 14, 2026 at 2:36 pm-
Property ID 4368084
-
Price $199,900
-
Garage Size x x
-
Property Type Lot, Land
-
Property Status Active, For Sale
Additional details
-
Listing Terms Cash,Construction Perm Loan,Exchange,Nonconforming Loan,Private
-
Sewer Public Sewer,Tap Fee Required
-
County Mecklenburg
-
Property Type Land
-
Elementary School Unspecified
-
Middle School Unspecified
-
High School Unspecified
Mortgage Calculator
-
Down Payment
-
Loan Amount
-
Monthly Mortgage Payment
-
Property Tax
-
Home Insurance
Contact Information
View ListingsSimilar Listings
2059 South Point Road, Belmont, NC 28012
2059 South Point Road, Belmont, NC 28012, Belmont, NC- Lot, Land
2399 Blackburn Bridge Road, Maiden, NC 28650
2399 Blackburn Bridge Road, Maiden, NC 28650, Maiden, NC- Lot, Land
000 Collette Ridge Circle, Collettsville, NC 28611
000 Collette Ridge Circle, Collettsville, NC 28611, Collettsville, NC- Lot, Land
93 Patchens Estate Road, Waynesville, NC 28786
93 Patchens Estate Road, Waynesville, NC 28786, Waynesville, NC- Lot, Land
- The Simpson Group Realty