Description
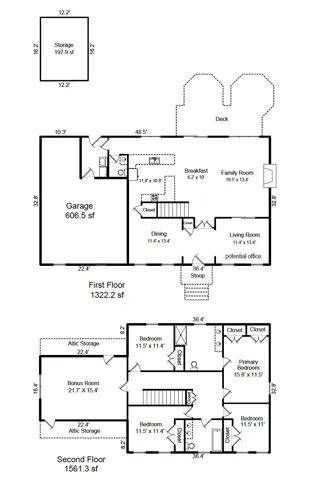
Full brick meticulously maintained 4 bedroom PLUS Bonus Rm AND Office on over half acre level lot in charming Glencroft with hardwoods on the main level. Home offers the perfect blend of open space alongside designated spaces for making the optimal use of the home as needs change. Kitchen offers ample storage and counter space and is open to family room with masonry wood-burning fireplace. Remodeled laundry room and pantry with custom shelving for easy organization. Front living room can easily serve as office space. From family room, updated sliding glass door leads to oversized Trek deck with hot tub and gazebo overlooking beautiful level rear yard. Custom fire pit adjacent to deck for enjoying cooler evenings. Upstairs the spacious primary suite includes a remodeled primary bath (2023) with custom linen pantry and beautifully updated tile. Upstairs also boasts 3 secondary bedrooms, a large hall bath with dual vanity, and large bonus room with recessed lighting. Renovated half bath on main (2022). Oversized garage (over 600 sq ft!) with large workshop area, epoxy floor, and ceiling fans makes for comfortable usable additional space to flex with your needs. Two walk-in attics. 12 x 16 shed with roof replaced 2022. All lighting updated (2022) Crawl space sealed with dehumidifier (2022). Water softener and UV light filter (2020). Gutter guards for easy maintenance! Septic pumped 9/25 and well pump replaced 7/25. Termite bond in place. Don’t miss the custom tall baseboards and moldings! Conveniently located close to downtown Mint Hill and Mint Hill Memorial Park. Quick access to 485! Please do not visit property without an approved appointment.
Address
Open on Google Maps-
Address: 8810 Scarsdale Drive
-
City: Mint Hill
-
State/county: NC
-
Zip/Postal Code: 28227
-
Area: Glencroft
Details
Updated on April 30, 2026 at 5:13 pm-
Property ID 4368558
-
Price $575,000
-
Bedrooms 4
-
Bathrooms 3
-
Garages 2
-
Garage Size x x
-
Year Built 1987
-
Property Type Single Family Residence, Residential
-
Property Status Active, For Sale
Additional details
-
Listing Terms Cash,Conventional,VA Loan
-
Roof Architectural Shingle
-
Utilities Electricity Connected,Fiber Optics
-
Sewer Septic Installed
-
Cooling Central Air
-
Heating Heat Pump
-
Flooring Carpet,Tile,Wood
-
County Mecklenburg
-
Property Type Residential
-
Parking Attached Garage,Garage Faces Side
-
Elementary School Bain
-
Middle School Mint Hill
-
High School Independence
-
Architectural Style Transitional
Mortgage Calculator
-
Down Payment
-
Loan Amount
-
Monthly Mortgage Payment
-
Property Tax
-
Home Insurance
Contact Information
View ListingsSimilar Listings
2643 Swamp Chestnut Oak Drive, Gastonia, NC 28056
2643 Swamp Chestnut Oak Drive, Gastonia, NC 28056, Gastonia, NC- Beds: 6
- Baths: 4
- Single Family Residence, Residential
525 Julia Avenue, Belmont, NC 28012
525 Julia Avenue, Belmont, NC 28012, Belmont, NC- Beds: 3
- Baths: 2
- Single Family Residence, Residential
1000 Ashley Place, Belmont, NC 28012
1000 Ashley Place, Belmont, NC 28012, Belmont, NC- Beds: 5
- Baths: 4
- Single Family Residence, Residential
6033 Bountiful Street, Belmont, NC 28012
6033 Bountiful Street, Belmont, NC 28012, Belmont, NC- Beds: 3
- Baths: 3
- Single Family Residence, Residential
- The Simpson Group Realty