Description
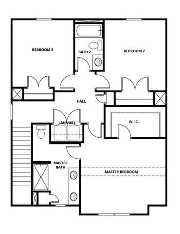
Beautiful 3-bedroom, 2.5-bath home featuring a bright, open-concept floor plan designed for comfortable everyday living. The main level offers seamless flow between the living room, dining area, and kitchen—ideal for entertaining and daily routines. The kitchen includes modern cabinetry, generous counter space, and quality finishes. Upstairs, the spacious primary suite features a private bath and walk-in closet. Two additional bedrooms provide flexible space for guests, home office, or bonus room needs. Convenient upstairs laundry room adds functionality. Enjoy outdoor living on the covered back porch. Well-maintained home offering open layout and functional design.
By obtaining financing through our preferred lender take advantage of seller concessions, like our Builder Paid Closing Costs. Plus take advantage of our $0 Down Programs!
Address
Open on Google Maps-
Address: 3321 Strong Box Lane
-
City: Gastonia
-
State/county: NC
-
Zip/Postal Code: 28052
-
Area: STAGECOACH STATION
Details
Updated on April 24, 2026 at 7:57 pm-
Property ID 4313956
-
Price $347,900
-
Bedrooms 3
-
Bathrooms 3
-
Garages 2
-
Garage Size x x
-
Year Built 2026
-
Property Type Single Family Residence, Residential
-
Property Status Active, For Sale
Additional details
-
Listing Terms Cash,Conventional,FHA,VA Loan
-
Association Fee 300
-
Roof Architectural Shingle
-
Utilities Cable Available,Electricity Connected,Satellite Internet Available,Underground Power Lines,Underground Utilities,Wired Internet Available
-
Sewer Public Sewer
-
Cooling Ceiling Fan(s),Dual,Electric,Heat Pump,Zoned
-
Heating Central,Electric,Heat Pump,Zoned
-
Flooring Carpet,Vinyl
-
County Gaston
-
Property Type Residential
-
Parking Driveway,Attached Garage,Garage Door Opener
-
Elementary School H.H. Beam
-
Middle School Southwest
-
High School Hunter Huss
-
Community Features Playground,Sidewalks,Walking Trails
Mortgage Calculator
-
Down Payment
-
Loan Amount
-
Monthly Mortgage Payment
-
Property Tax
-
Home Insurance
Contact Information
View ListingsSimilar Listings
2643 Swamp Chestnut Oak Drive, Gastonia, NC 28056
2643 Swamp Chestnut Oak Drive, Gastonia, NC 28056, Gastonia, NC- Beds: 6
- Baths: 4
- Single Family Residence, Residential
525 Julia Avenue, Belmont, NC 28012
525 Julia Avenue, Belmont, NC 28012, Belmont, NC- Beds: 3
- Baths: 2
- Single Family Residence, Residential
1000 Ashley Place, Belmont, NC 28012
1000 Ashley Place, Belmont, NC 28012, Belmont, NC- Beds: 5
- Baths: 4
- Single Family Residence, Residential
6033 Bountiful Street, Belmont, NC 28012
6033 Bountiful Street, Belmont, NC 28012, Belmont, NC- Beds: 3
- Baths: 3
- Single Family Residence, Residential
- The Simpson Group Realty