Description
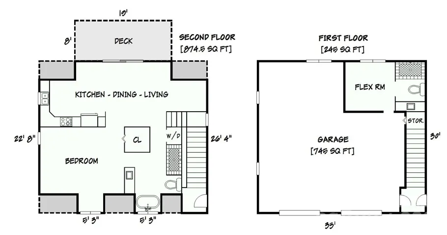
Perched on a stunning 2+ acre homesite within prestigious Old Wildlife Club, 1195 Old Wildlife Club Drive offers one of the most breathtaking vantage points on Lake James. This rare property captures expansive long-range water views paired with the Blue Ridge Mountains, a combination seldom found on Lake James and one that creates a truly unforgettable setting. An easy-to-access, year round boatslip just a short UTV ride away is included! The thoughtfully designed “Garagemahal” provides comfortable living today while leaving plenty of room to build a future dream home on the spacious parcel. The massive two-bay garage is ideal for lake living, with one extra-long bay designed to accommodate a boat, lake toys, or workshop space.Above the garage, the main living area features vaulted ceilings and a dramatic wall of windows that perfectly frame the sweeping lake and mountain views. The open living space flows easily into an ample kitchen with built-in features and granite countertops throughout, making full use of the space for everyday living or entertaining. The primary suite offers a peaceful retreat with a spacious bathroom and stand-alone soaking tub, while additional flexible living space on the garage level includes a full bathroom and room that could serve as a guest area, office, or recreation space. A washer and dryer, generous storage, low-maintenance Hardy siding, and a stone foundation add to the home’s practicality and durability. Outdoor living truly shines here. A large Trex deck stretches across the home, showcasing the panoramic views, while a covered patio below and firepit area overlooking the sparkling waters of Lake James provide incredible spaces to relax and entertain. Ownership also includes access to Camp Lake James, offering a lakefront pool, fitness center, tennis and pickleball courts, dining, social events, and marina access. The owners are even willing to share their previous custom home design plans, making this an exceptional opportunity to enjoy the property now while planning your ultimate Lake James retreat.
Address
Open on Google Maps-
Address: 1195 Old Wildlife Club Drive
-
City: Nebo
-
State/county: NC
-
Zip/Postal Code: 28761
-
Area: Old Wildlife Club
Details
Updated on April 6, 2026 at 12:59 pm-
Property ID 4354747
-
Price $1,150,000
-
Bedroom 1
-
Bathrooms 2
-
Garages 2
-
Garage Size x x
-
Year Built 2017
-
Property Type Single Family Residence, Residential
-
Property Status Active, For Sale
Additional details
-
Listing Terms Cash,Conventional
-
Association Fee 2200
-
Roof Architectural Shingle,Metal
-
Utilities Electricity Connected,Fiber Optics,Underground Power Lines,Underground Utilities,Wired Internet Available
-
Sewer Septic Installed
-
Cooling Ductless
-
Heating Ductless
-
Flooring Concrete,Wood
-
County Mc Dowell
-
Property Type Residential
-
Parking Driveway,Garage Faces Front
-
Elementary School Unspecified
-
Middle School Unspecified
-
High School Unspecified
-
Community Features Boat Storage,Cabana,Clubhouse,Elevator,Fitness Center,Game Court,Hot Tub,Lake Access,Outdoor Pool,Pickleball,Picnic Area,Pond,Recreation Area,RV Storage,Sport Court,Tennis Court(s),Walking Trails
-
Waterfront Beach - Public,Boat Slip – Community,Boat Slip (Deed),Boat Slip (Deed) (Off Site),Boat Slip (Lease/License),Boat Slip (Lease/License) (Off Site),Paddlesport Launch Site - Community,Pier - Community
Features
Mortgage Calculator
-
Down Payment
-
Loan Amount
-
Monthly Mortgage Payment
-
Property Tax
-
Home Insurance
Video
360° Virtual Tour
Contact Information
View ListingsSimilar Listings
525 Julia Avenue, Belmont, NC 28012
525 Julia Avenue, Belmont, NC 28012, Belmont, NC- Beds: 3
- Baths: 2
- Single Family Residence, Residential
2643 Swamp Chestnut Oak Drive, Gastonia, NC 28056
2643 Swamp Chestnut Oak Drive, Gastonia, NC 28056, Gastonia, NC- Beds: 6
- Baths: 4
- Single Family Residence, Residential
1000 Ashley Place, Belmont, NC 28012
1000 Ashley Place, Belmont, NC 28012, Belmont, NC- Beds: 5
- Baths: 4
- Single Family Residence, Residential
6033 Bountiful Street, Belmont, NC 28012
6033 Bountiful Street, Belmont, NC 28012, Belmont, NC- Beds: 3
- Baths: 3
- Single Family Residence, Residential
- The Simpson Group Realty