Description
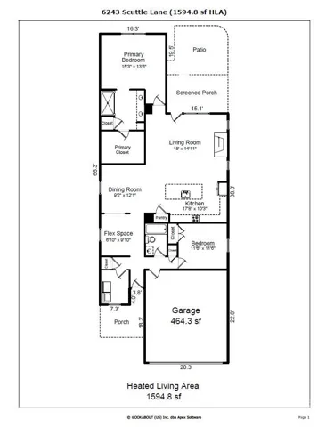
Welcome to Trilogy Lake Norman, a resort-style, golf cart friendly, gated community for ages 55 and better. This 2023 beautifully maintained move-in ready home is ready for you to live your best life. The popular single level open-concept Glory floor plan is a well-planned blend of function and space designed for daily living. The heart of the house is a well-appointed chef’s kitchen with a 9-foot island, substantial cabinet space with upper and lower lighting, configurable pantry and stainless-steel appliances that include an upgraded gas range with dual ovens. The kitchen flows seamlessly into the dining room and great room making this home for ideal entertaining. A spacious primary suite overlooks the backyard and leads into a master bath with dual vanities, toilet closet and a walk-in shower with bench seating. Thoughtful upgrades inside and out include a gas fireplace with logs, designer lighting & fans, recessed lighting, extended finished garage with epoxy flooring, screened porch with extended paver patio and seating wall, customizable shelving, security system and custom window shades. Smart home features are throughout the home and can be managed through simple app connections to your phone. Features include programmable interior and exterior lighting, programmable thermostat, a front door Ring doorbell with camera, back patio Ring camera, app accessible garage door control and front door keyless entry. The beautifully landscaped lot borders a common area giving an extended feel to the backyard. The HOA creates ease of living with fees including front and side yard maintenance. Trilogy Lake Norman’s social membership offers an active lifestyle of indoor & outdoor pools, fitness center & classes, walking trails, pickleball, tennis, community events and an on-site restaurant. In addition to the amazing resort amenities, members have access to Lake Norman through the Freedom Boat Club giving you all the pleasures of boating without the stress of ownership. Schedule your showing and be one step closer to living the lifestyle you’ve always dreamed of.
Address
Open on Google Maps-
Address: 6243 Scuttle Lane
-
City: Denver
-
State/county: NC
-
Zip/Postal Code: 28037
-
Area: TRILOGY LAKE NORMAN
Details
Updated on May 29, 2026 at 7:11 pm-
Property ID 4362017
-
Price $498,500
-
Bedrooms 2
-
Bathrooms 2
-
Garages 2
-
Year Built 2023
-
Property Type Single Family Residence, Residential
-
Property Status Active, For Sale
Additional details
-
Listing Terms Cash, Conventional
-
Association Fee 540
-
Sewer County Sewer
-
Cooling Ceiling Fan(s), Central Air
-
Heating Forced Air, Natural Gas
-
Flooring Carpet, Tile, Vinyl
-
County Lincoln
-
Property Type Residential
-
Parking Attached Garage, Garage Door Opener
-
Elementary School Catawba Springs
-
Middle School East Lincoln
-
High School East Lincoln
-
Community Features Fifty Five and Older, Clubhouse, Dog Park, Fitness Center, Outdoor Pool, Tennis Court(s), Walking Trails
Mortgage Calculator
-
Down Payment
-
Loan Amount
-
Monthly Mortgage Payment
-
Property Tax
-
Home Insurance
Contact Information
View ListingsSimilar Listings
1042 Assembly Street, Belmont, North Carolina 28012
1042 Assembly Street, Belmont, NC 28012, Belmont, NC- Beds: 4
- Baths: 3
- Single Family Residence, Residential
525 Julia Avenue, Belmont, North Carolina 28012
525 Julia Avenue, Belmont, NC 28012, Belmont, NC- Beds: 3
- Baths: 2
- Single Family Residence, Residential
6033 Bountiful Street, Belmont, North Carolina 28012
6033 Bountiful Street, Belmont, NC 28012, Belmont, NC- Beds: 3
- Baths: 3
- Single Family Residence, Residential
10 Oak Street, Belmont, North Carolina 28012
10 Oak Street, Belmont, NC 28012, Belmont, NC- Beds: 5
- Baths: 4
- Single Family Residence, Residential
- The Simpson Group Realty